Local d'activités Bureaux / Activités légères de 310 m² à louer au pied de l'autoroute A15 | 95370 Montigny Les Cormeilles
loyer : 46 500€
Surface : 310,00m2 | Dispo : Immédiate

Bornes de recharge véhicules eléctriques


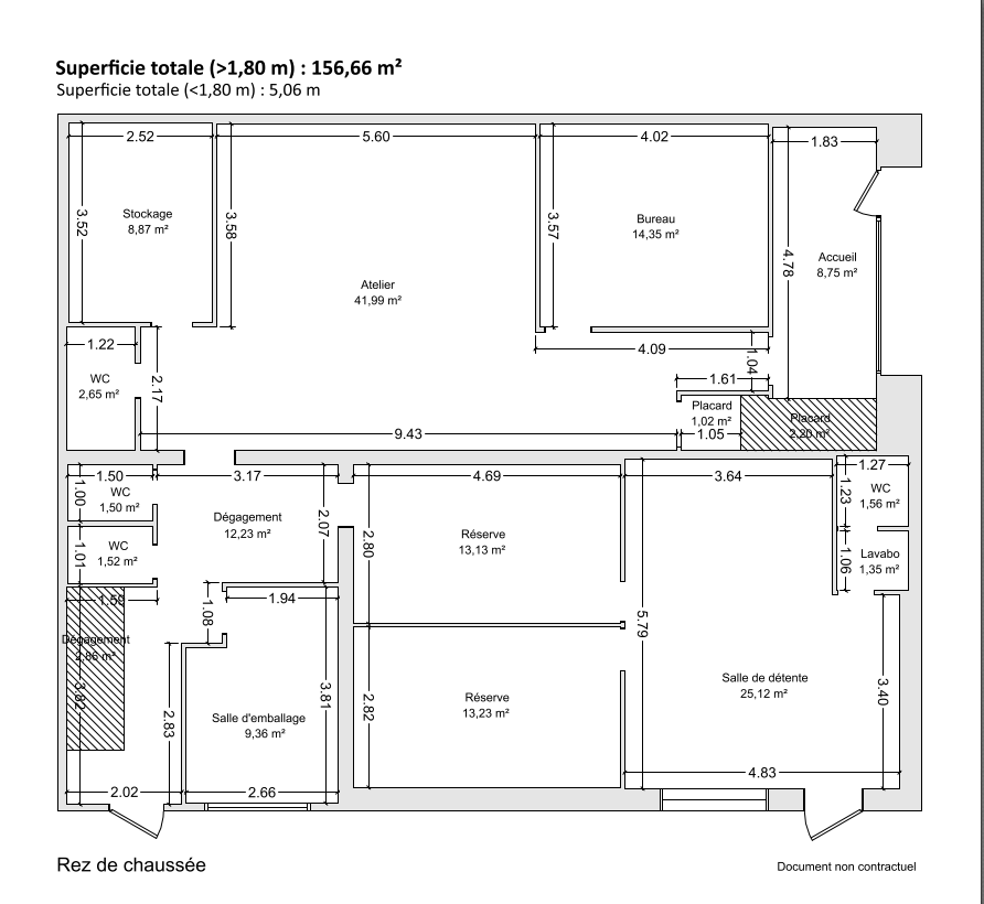
Plan

Nous contacter

Ce bien vous interesse ?
Nous vous recontactons dans les 24H.

Prendre un rendez-vous

Présentation du bien
STC vous propose à louer des locaux fonctionnels proche de la Patte d'Oie d'Herblay. Au rdc accueil, sanitaires, bureaux et salle de réunion. Accès camion de plain-pied par un rideau métallique. Au premier étage, bureaux cloisonnés avec sanitaires. Les locaux sont climatisés, fibre optique, moquette et parquet dans les bureaux. Faux-plafond.

- loyer: 46500€
- Type d'offre: Location
- Surface: 310 m2
- Etat general: En état d'usage
- localisation: Montigny Les Cormeilles
- Code Postal: 95370
- Taxe Fonciere: 2600€
- Charges: 2500€
- Taxe Bureaux: 1300€