Bureaux en parfait état à louer avec possiblité d'avoir une activité légère au RDC au pied de l'autoroute A14 à Carrières sur Seine dans les Yvelines (78) | 78420 Carrières sur seine
loyer : 40 000€
Surface : 271,00m2 | Dispo : Immédiate

7 emplacements de parking


Plan

Nous contacter

Ce bien vous interesse ?
Nous vous recontactons dans les 24H.

Prendre un rendez-vous

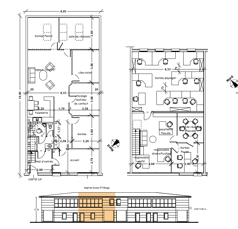
Présentation du bien
STC vous propose à la location des bureaux au RDC et R+1 d'un immeuble construit en 2005. Locaux situés sur un parc d'activité clôturé et sécurisé. Accueil, cuisine et bureaux cloisonnés au RDC, possibilité de créer une porte sectionnelle permettant une activité légère ou du stockage. Au R+1, bureaux cloisonnés, open space et salles de réunion. Locaux ERP, interphone et fibre optique.

- loyer: 40000€
- Type d'offre: Location
- Surface: 271 m2
- Etat general: Excellent état
- localisation: Carrières sur seine
- Code Postal: 78420
- Taxe Fonciere: 4821€
- Charges: 1980€